Dellwiger Straße, 45357 Essen
Kaufpreis 427.500,-- €

7
Einheiten

411 m²
Wohnfläche

601 m²
Grundstück

1910
Baujahr
Dieses vollunterkellerte Mehrfamilienhaus mit insgesamt 7 Wohneinheiten bietet eine interessante Gelegenheit für Investoren oder handwerklich versierte Käufer, die das Potenzial einer Immobilie erkennen und ausschöpfen möchten.
Das Gebäude verfügt über 2-Raum-Wohnungen mit einer Wohnfläche von ca. 54,30 m² im Erdgeschoss und ca. 58,50 m² im 1. und 2. Obergeschoss sowie ca. 44,10 m² im Dachgeschoss.
Das Dachgeschoss verfügt darüber hinaus über ein ausgebautes Zimmer mit einer Größe von ca. 24,50 m² sowie weiterer Fläche als Ausbaupotenzial. Das Haus präsentiert sich mit einer Wohnungsgröße, die auf dem Mietmarkt besonders gefragt ist – ideal für Singles, Paare oder Pendler. Im Treppenhaus befindet sich je Wohneinheit ein Abstellraum, welcher die Möglichkeit des Anschlusses einer Waschmaschine bietet.
Für die Wohnung im Dachgeschoss liegt aktuell keine baurechtliche Genehmigung vor.
Von den insgesamt sieben Wohneinheiten sind zwei vermietet, wodurch die weiteren Wohnungen flexible Vermietungs- und Nutzungsmöglichkeiten bieten.
Die Immobilie befindet sich derzeit in einem renovierungs- bzw. sanierungsbedürftigen Zustand insbesondere im Bereich Dach und Fassade, eröffnet dadurch jedoch vielfältige Möglichkeiten zur Neugestaltung, Modernisierung und nachhaltigen Wertsteigerung. Mit einem durchdachten Konzept lässt sich das Objekt zu einem attraktiven Mehrfamilienhaus mit langfristigem Vermietungspotenzial entwickeln.
Ein besonderes Highlight ist der großzügige Garten, der den zukünftigen Bewohnern zusätzlichen Wohn- und Freizeitwert bietet. Ob als gemeinschaftliche Grünfläche, Ruhebereich oder Spielmöglichkeit – hier entsteht ein echtes Plus an Lebensqualität.
Dieses Objekt eignet sich ideal für Käufer, die Substanz erkennen und durch Investitionen neuen Wohnraum mit Perspektive schaffen möchten.
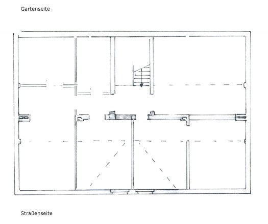
Grundrisse
Erdgeschoss
1. und 2. Obergeschoss
Dachgeschoss
Kellergeschoss
Lage
Das Mehrfamilienhaus liegt im Essener Stadtteil Dellwig. Hier profitieren Sie von einer gut ausgebauten Infrastruktur, einer sehr guten Verkehrsanbindung und den zahlreichen umliegenden Grünflächen, die zu einer abwechslungsreichen Freizeitgestaltung einladen. Fast ein Viertel der Fläche von Dellwig besteht aus Parks, Grünanlagen, Spiel- und Sportplätzen sowie Wald- und Wasserflächen.
Einkaufsmöglichkeiten, Bäckereien, Ärzte und Apotheke befinden sich ca. 1 km entfernt.
Zur Freizeitbeschäftigung lockt der angrenzende Gleispark, der Rhein-Herne Kanal und Park am Läppkes Mühlenbach. Hier finden Sie Ruhe und Erholung auf den weitläufigen Spazierwegen. Radfreunde begeistert der ca. 230 km lange Emscher Park Radweg, der über den Rhein-Herne Kanal von Duisburg bis nach Hamm führt. Ebenfalls in unmittelbarer Nähe zum Kanal liegt das Freibad „Hesse“, das einzige Schwimmbad im Essener Norden.
Auch die Wege zu den beliebten Einkaufzentren CentrO und Rhein-Ruhr-Zentrum (RRZ) oder auch das Sealife, der Aqua-Park und der Emscher-Landschaftspark sind recht kurz und mit dem Auto in weniger als 10 Minuten erreichbar.
Die Autobahn A40 und A42 sind in wenigen Kilometern zu erreichen und bieten eine schnelle Verbindung in die Essener Innenstadt, Mülheim, Oberhausen und Duisburg.
Beratung und weitere Informationen

Nadia Stollmeier
Telefon: 0201 / 178 937 0
Mobil: 0160 / 792 19 57
